„Familien sind hier herzlich willkommen“
VERMIETET !
zu vermieten ab etwa 15.10.2016
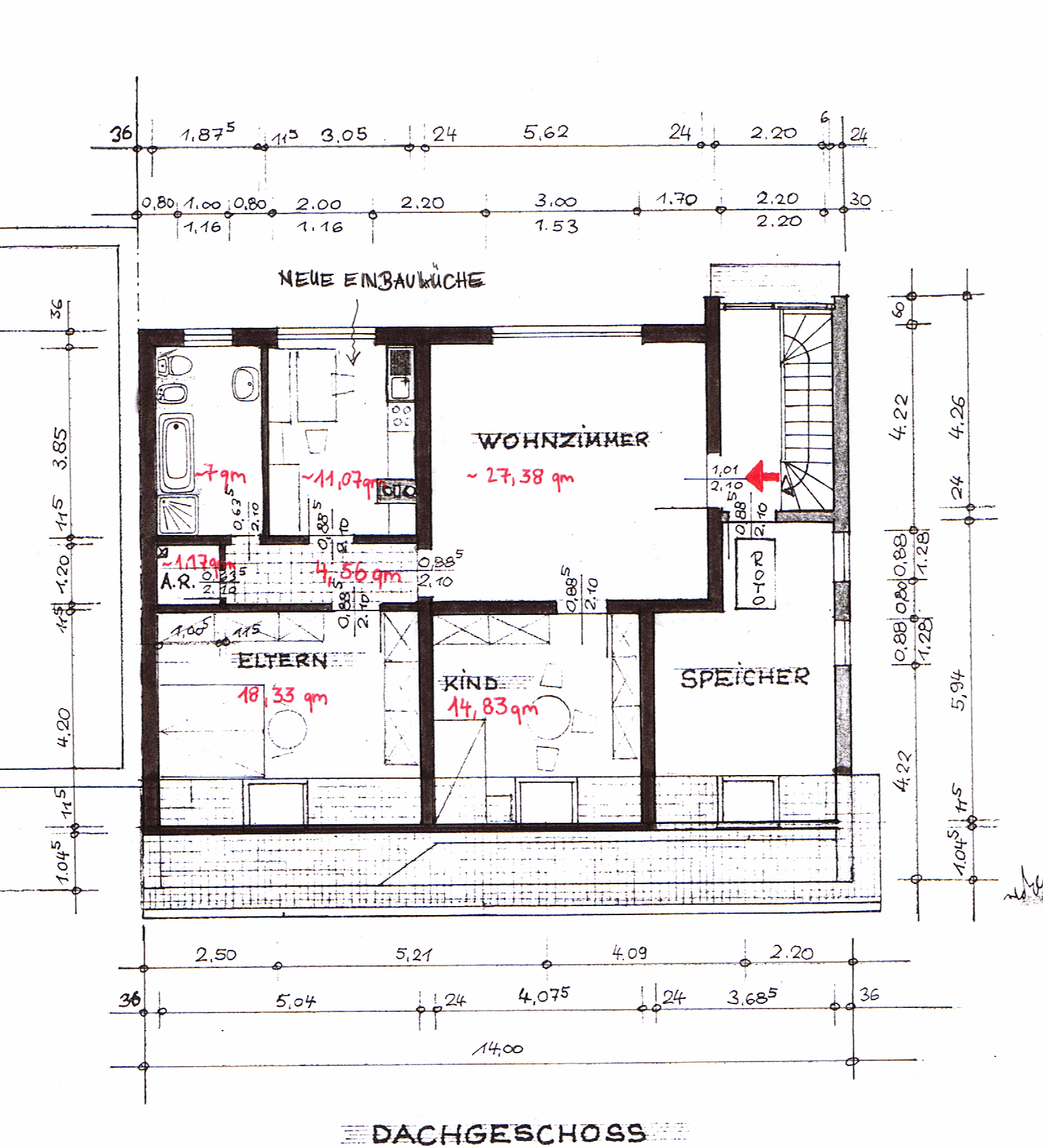
Obergeschosswohnung in herrlicher, ruhiger Lage im Dreifamilienwohnhaus
3 Zimmer, Küche, Bad, 1 Abstellraum innerhalb der Wohnung, Kellerraum, Gartennutzung möglich
Wohnfläche: ca. 84 m²
Kaltmiete: xxx,– €
Nebenkosten: ca. xxx,– €
Hier sind Familien herzlich willkommen und Kinder überhaupt kein Problem, obwohl die Vermieter im Erdgeschoss wohnen.

Topps:
– ruhige Wohnstraße
– angenehme, große Wohn- bzw. Schlafräume
– Bad mit Fenster, Dusche und Badewanne
– sehr gepflegte Einbauküche
– Wohnzimmer mit Eichenparkett
– neuer Laminatboden in den anderen beiden Zimmern
– teilweise neue Stein-Fensterbänke
– komplett frisch gestrichen
– insgesamt „nur“ drei Parteien (3FH)
Lage:
Das Wohnhaus befindet sich im nordöstlichen Teil des Bergdorfes. Dort, im oberen Bereich einer Wohnstraße, findet man Ruhe und Erholung. In nur wenigen Gehminuten erreichen Sie Wiesen und Felder.
Sonstiges:
Sowohl Wohnhaus, als auch Grundstück, sind sehr gepflegt.
Ein PKW-Stellplatz gehört nicht zur Wohnung. Entlang des öffentlichen Straßenraumes gibt es jedoch ausreichend Parkmöglichkeiten.
Haustiere sind nicht erwünscht.
Baujahr 1988

